Porzione di bifamiliare in vendita

Settimo Torinese, Via G. Parini - Provinciale
€ 349.000
6 locali 6 locali
196 Mq 196 Mq
2 bagni 2 bagni

Porzione di bifamiliare in vendita

Settimo Torinese, Via G. Parini - Provinciale

Descrizione annuncio

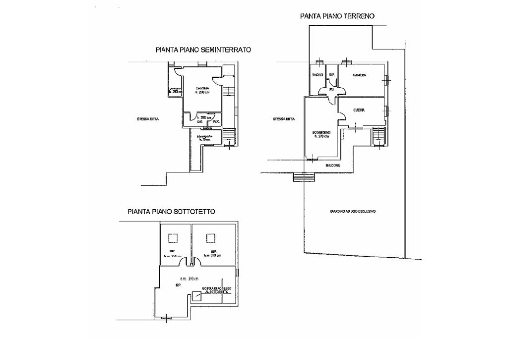
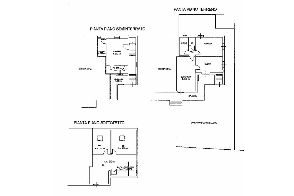
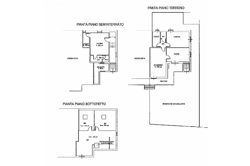
Proponiamo in vendita villetta libera su tre lati, disposta su due livelli e con possibilità di realizzare una soluzione bifamiliare grazie alla scala esterna indipendente.
Piano terra completamente ristrutturato nel 2023
Ambienti luminosi e ben distribuiti
Cortile privato ideale per momenti all'aperto
Spazi versatili che si adattano a diverse esigenze abitative

Ottima soluzione per chi cerca indipendenza, comfort e la possibilità di personalizzare gli ambienti.

QUATTRO BUONI MOTIVI PER SCEGLIERE QUESTO IMMOBILE:

1. Infissi PVC in doppio vetro

2. Possibilità di utiizzare stufa a pellet come riscaldamento

3. Indipendente

4. Climatizzatori e inferiate

Mostra tutto

Nelle vicinanze

Trasporto pubblico Trasporto pubblico
Settimo Torinese
Settimo Torinese
850 m
D'Azeglio
D'Azeglio
150 m
Meucci
Meucci
250 m
Ricariche auto elettriche Ricariche auto elettriche
LIDL Settimo Torinese
760 m
Record Hotel
1,6 Km
Torino Outlet Village
2,1 Km
Evway Settimo Cielo Retail Park
2,5 Km
EnelX EVA+ Mercatò San Mauro Torinese
3,0 Km
Scuole Scuole
Scuola secondaria di primo grado "Guerrino Nicoli"
270 m
Scuola Primaria "Gianni Rodari"
290 m
Scuola Primaria "A. G. Roncalli"
350 m
Scuola Secondaria di 1° grado "Italo Calvino"
450 m
Scuola Primaria "Andersen" e scuola dell'Infanzia "Arcimboldo"
540 m
Farmacia Farmacia
Farmacia
180 m
Nat & Bio
2,5 Km
Farmacia Sambuy
2,6 Km
Ospedali Ospedali
Ospedale Civico di Settimo Torinese
1,1 Km
Ospedali
1,1 Km
Supermercati Supermercati
Spada
330 m
Lidl
740 m
Coop
980 m
Mercatò
1,4 Km
Supermercati
1,4 Km
Negozi Negozi
Negozi
300 m
Ki Group
1,8 Km
Timberland
2,0 Km
Nike Factory Store
2,0 Km
Pepe Jeans
2,0 Km
Bar Bar
Bar Luca e Dario
1,9 Km
Bar
3,0 Km
Ristoranti Ristoranti
BEFeD
1,3 Km
Ristorante della suoneria
1,5 Km
Ristorante Bar La Cascinotta
1,8 Km
Bar ristorante Pescarito
2,2 Km
Roadhouse
2,3 Km
Mostra tutto

Caratteristiche

Rif.:
61115918
Piano:
2 di 2 (Piano su più livelli)
Posti auto:
1
Balconi:
1
Terrazzi:
1
Camere da letto:
3
Mostra tutto
Prezzo Prezzo
€ 349.000
Rata mutuo Rata mutuo
€ 1.650 / mese
Spese annue Spese annue
€ 0
Proponi il tuo prezzoProponi il tuo prezzo

Classe Energetica

E
E
E
E
E
E
E
E
E
EP globale non rinnovabile:
1.00 kW h/m² anno
EP globale rinnovabile:
1.00 kW h/m² anno
EP invernale del fabbricato:
EP estiva del fabbricato:
Anno di costruzione:
1967
Riscaldamento:
Autonomo
Tipo impianto:
A radiatori
Tipo alimentazione:
Metano

Ti interessa visionare l'immobile?

Fissa un appuntamento  Fissa un appuntamento

Richiedi informazioni

Clicca su Leggi per aprire l'informativa
* Questi campi sono obbligatori

Calcola il tuo mutuo

Semplice e senza impegno
Anticipo

( % )
Mutuo

( % )

pochi semplici passi

inserisci i tuoi dati
Questionario completato
Grazie per aver richiesto un appuntamento senza impegno con un nostro Consulente del Credito e Assicurativo.

Hai inserito correttamente tutti i dati necessari e a breve riceverai una e-mail con un link da convalidare per inviare i tuoi dati.
Affiliato
Emme Group Srl
Via Leinì, 5 10036 Settimo Torinese (TO)

Il nostro staff


  • Massimiliano Bianchi
    Affiliato

  • Martina Bonaccorsi
    Responsabile

  • Chiara Pangallo
    Coordinatrice

  • Massimo Salatino
    Affiliato
Via Leinì, 5 10036 Settimo Torinese (TO)
Zona: Settimo Torinese-Borgo Nuovo-Provinciale
Mostra su mappa
Orari: lunedì - venerdì 8.45 - 12.30 / 14.45- 20.00; sabato 8.45 - 12.30 / 15.00 - 19.00
Affiliato
Emme Group Srl
Via Leinì, 5 10036 Settimo Torinese (TO)

2026 Tecnocasa Franchising S.p.A. - P. IVA 08365160152 - Via Monte Bianco 60/A 20089 Rozzano (MI). Ogni agenzia ha un proprio titolare ed è autonoma. Privacy policy | Policy utilizzo | Cookie policy